Appartement à vendre, Montréal (Saint-Léonard)

5941, Boul. Couture

449 900 $

5941, Boul. Couture

Montréal (Saint-Léonard)

chambre(s) 2 salle(s) de bain 1 salle(s) de bain 9
Photo Pascal Chimienti

Pascal Chimienti

Courtier immobilier résidentiel et commercial

514-585-6822

No Centris
#23501003
Type de propriété
Appartement
Style de bâtiment
Jumelé
Année de construction
1993
Superficie du terrain
Date d’emménagement
90 jours

Caractéristiques

Allée
Asphalte
Mode de chauffage
Plinthes électriques
Approvisionnement en eau
Municipalité
Énergie pour le chauffage
Électricité
Équipement disponible
Thermopompe murale
Proximité
Autoroute/Voie rapide , Cegep, Garderie/CPE, Parc-espace vert, École primaire, École secondaire, Transport en commun
Services disponibles
Détecteur d'incendie
Stationnement
Extérieur (1)
Système d'égouts
Municipal
Zonage
Résidentiel

Dimensions

Façade du bâtiment
Profondeur du bâtiment
Superficie habitable
1 148.51 pi. ca.
Façade du terrain
Profondeur du terrain
Superficie du terrain

Particularités des pièces

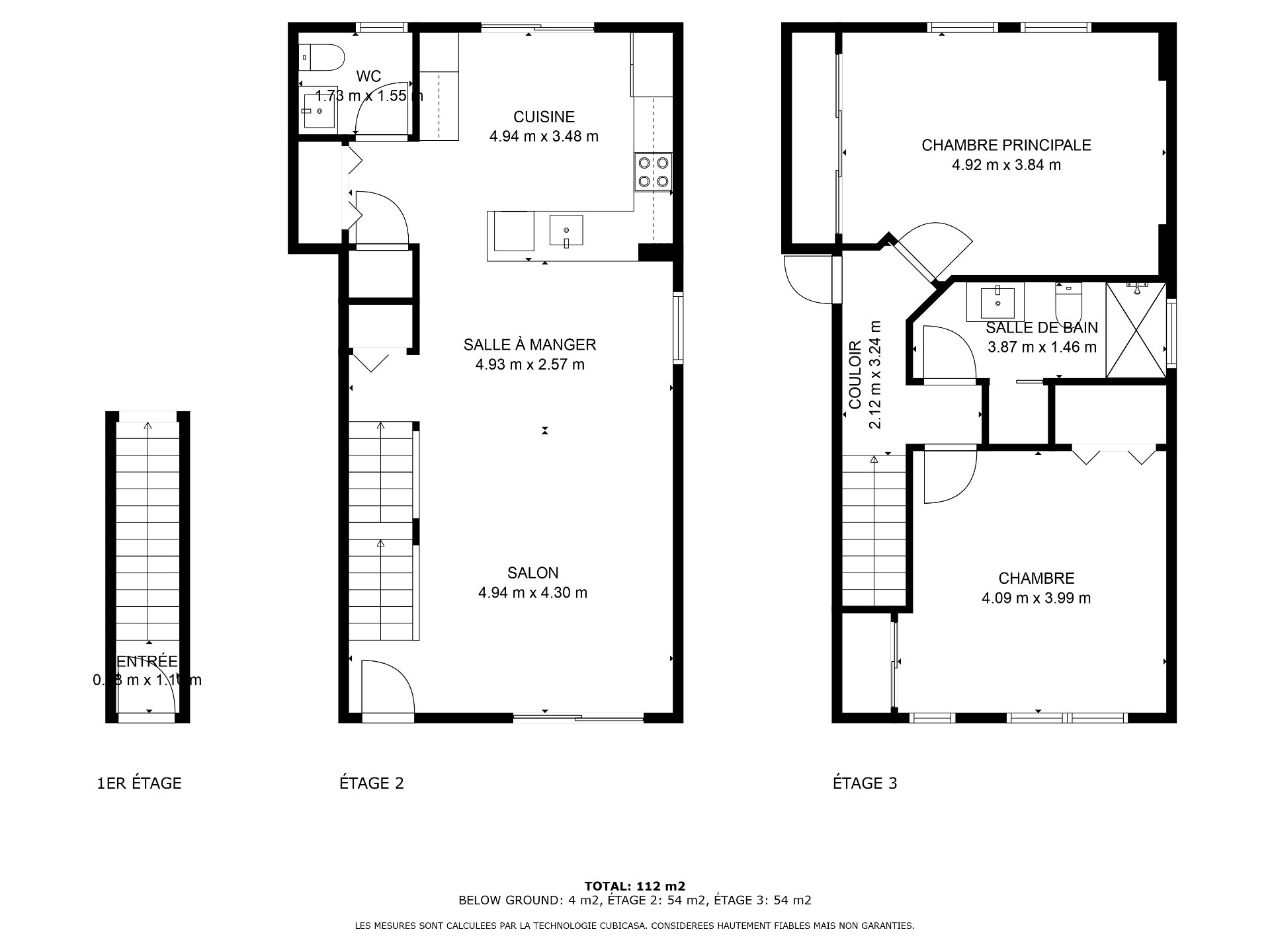
Pièces
9 pièces    |    2 chambre(s)    |    1 salle(s) de bain    |    1 salle(s) d'eau
Hall d'entrée
Rez-de-chaussée
2 x 3.6 pi.
Revêtement : Céramique
Salon
2ième étage
16.2 x 14.1 pi.
Salle à manger
2ième étage
16.2 x 8.5 pi.
Cuisine
2ième étage
16.2 x 11.4 pi.
Revêtement : Céramique
Salle d'eau
2ième étage
5.7 x 5 pi.
Revêtement : Céramique
Hall d'entrée
3ième étage
7 x 10.6 pi. - irrégulier
Revêtement : Bois
Chambre à coucher principale
3ième étage
16.1 x 12.6 pi. - irrégulier
Revêtement : Bois
Chambre à coucher
3ième étage
13.4 x 13 pi.
Revêtement : Bois
Salle de bains
3ième étage
12.7 x 4.8 pi. - irrégulier
Revêtement : Céramique

Inclusions

Stores, luminaires (sauf lampe de table de la salle à manger et lampe de la chambre principale), fresque murale de la climatisation, Hotte

Exclusions

Réfrigérateur, cuisinière, lave-vaisselle, laveuse/sécheuse, micro-ondes et tous les meubles.

Addenda

Condo rénové sur 2 étages à Saint-Léonard

Magnifique condo situé au 5941 Rue Couture offrant confort et emplacement stratégique. Cette unité rénovée sur deux niveaux comprend 2 grandes chambres, 1 salle de bain complète et 1 salle d'eau, parfaite pour familles, couples ou professionnels.
Profitez d'un espace lumineux, d'une thermopompe murale chauffage/climatisation, ainsi que de deux balcons privés, dont un grand balcon arrière idéal pour profiter de l'été.

1 stationnement extérieur inclus.

Emplacement de choix à proximité de :

* Galeries d'Anjou et Place Viau
* Épiceries, cafés et restaurants
* Parcs et espaces verts
* Écoles et garderies
* Accès rapide aux autoroutes 40 et 25

Plusieurs lignes d'autobus à proximité et à courte distance du prolongement de la ligne bleue du métro (stations Lacordaire et Anjou).

Idéal pour premiers acheteurs, jeunes professionnels ou investisseurs.

L'acte de vente et d'occupation peut être flexible.

À propos de cette propriété

Condo rénové sur 2 étages à Saint-Léonard offrant 2 grandes chambres, 1 salle de bain complète et 1 salle d'eau. Disposition lumineuse et fonctionnelle avec thermopompe murale pour un confort à l'année. Profitez de deux balcons privés, dont un grand balcon arrière. 1 stationnement extérieur inclus. Emplacement idéal près des Galeries d'Anjou, parcs, écoles, épiceries et restaurants. Accès rapide aux autoroutes 40 et 25, plusieurs lignes d'autobus et à quelques minutes de la future ligne bleue du métro. Acte de vente/Occupation flexible! Contactez nous aujourd'hui!

Demande d'information

Détails financiers

Annuel
Mensuel
Évaluation municipale (2024)
Bâtiment
325 800 $
Terrain
88 300 $
Taxes
Taxes municipales (2026)
2 483 $ 207 $
Taxes scolaires (2025)
247 $ 21 $
Dépenses et énergie
Frais de copropriété
2 100 $ 175 $

Rénovation

Autre (Thermopompe mural) : 2020
Cuisine : 2021
Planchers : 2021
Salle de bains : 2021
Demander plus d’information pour recevoir les factures.
Demande d'information

Calculateurs

  • Paiement mensuel
  • Taxe de mutation
  • Pouvoir d'achat

Montant des versements mensuels

 

**Le prix affiché n’inclut pas la prime d’assurance SCHL.

Taxe de mutation

 

** Uniquement à titre de référence, pour le montant exact, s'il vous plaît confirmer auprès de la ville ou la municipalité.

Pouvoir d'achat

 

**Le prix affiché n’inclut pas la prime d’assurance SCHL.

Vous aimez cette propriété?Partagez-la!

Nouvelles propriétés sur le marché qui pourraient vous intéresser

Vous cherchez la propriété de vos rêves? C’est par ici, et appelez-nous pour en savoir davantage ou planifier une visite !

WhatsApp
+

Vos préférences en matière de cookies

Nous utilisons des cookies pour optimiser notre site web et collecter des statistiques d'utilisation.

Politique en matière de cookies