Lot for sale, Montréal (Ville-Marie)

Rue Larivière

$ 549,000 +TPS/TVQ

Rue Larivière

Montréal (Ville-Marie)

Photo Paul Fortin

Paul Fortin

Residential and Commercial Real Estate Broker

514-969-4036

Photo Jean Fortin

Jean Fortin

Residential and Commercial Real Estate Broker

514-962-3018

Centris #
#26647587
Property type
Lot
Construction year
0
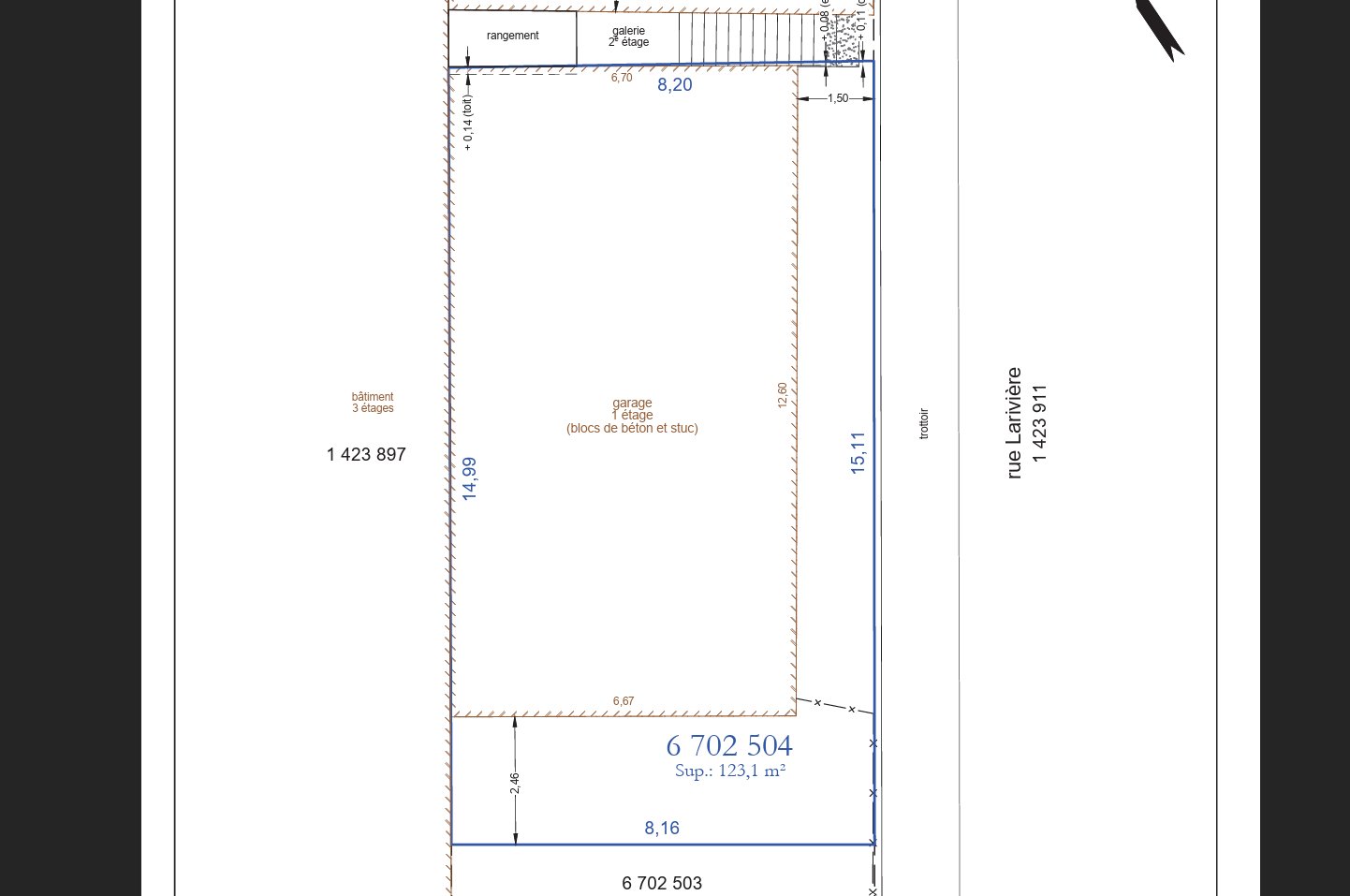
Land area
123.10 m²
Move-in date
30 days

Characteristics

Water supply
Municipality
Proximity
Highway , Cegep, Daycare centre, Hospital, Bicycle path, Elementary school, High school, Public transport, University
Sewage system
Municipal sewer
Zoning
Multifamily , Residential

Dimensions

Front of the building
Depth of the building
Living area
Front of the land
8.16 m
Depth of the land
17.99 m
Land area
123.10 m²

Room Dimensions

Rooms
0 rooms    |    0 bedroom(s)    |    0 bathroom(s)    |    0 washroom(s)

Addenda

This exceptional development opportunity consists of a vacant lot formerly part of the 5plex located at the rear of 2151--2159 rue Parthenais, in the highly sought-after Ville-Marie sector of Montréal.

The lot has a total surface area of approximately 123.1 square metres (±1,325 sq. ft.) and currently includes rented storage garages, which are generating interim income. These leases may be terminated at the time of purchase in order to proceed with the approved development.

The proposed project has received full approval from the CCU and the Borough of Montréal. All architectural plans have been completed by the seller and the project is fully complete from a planning standpoint. Construction permits are ready to be issued once ownership is transferred and applicable city and park fees are paid by the buyer. (Details regarding these fees will be provided upon serious interest.)

The approved development consists of a three-storey residential building, designed by the reputable architectural firm Zoubeir Azouz.

The proposed project consists of the construction of four residential units on a large lot located at the intersection of Parthenais/Larivière Street. The lot is currently occupied by garages.

A cadastral subdivision has been completed to allow the realization of the project, with the new construction to be built on the footprint currently occupied by the existing garages. The proposed development aims to optimize the site by adding four new residential units distributed over three storeys. These units will be designed in two configurations: 3½ and 4½ units, suitable for families as well as young couples.

The project also prioritizes the maximization of green spaces. Outdoor amenity areas are planned on the rooftop, where two large terraces will be created and bordered by landscaped planting beds.

The interior circulation layout has been designed to free up the main façade along Larivière Street, providing fluid accessibility and a refined architectural aesthetic. The proposed design allows for large front-facing openings, improving the intake of natural light throughout the building.

The building volume will be vertically divided into two sections, reflecting the traditional proportions of Montréal plex-style buildings. This strategy creates visual dynamism and rhythm through the alternation of selected materials. The brick cladding, featuring tones complementary to the surrounding neighborhood, will ensure harmonious integration of the project within its urban context.

In summary, this project optimizes the use of the lot while responding to the growing demand for housing. It will also enhance the surrounding environment and built landscape of Ville-Marie through the addition of green spaces, while maintaining strong architectural cohesion with the existing urban fabric.

About this property

This exceptional development opportunity consists of a vacant lot formerly part of the 5plex located at the rear of 2151--2159 rue Parthenais, in the highly sought-after Ville-Marie sector of Montréal. The lot has a total surface area of approximately 123.1 square metres (±1,325 sq. ft.) and currently includes rented storage garages, which are generating interim income. These leases may be terminated at the time of purchase in order to proceed with the approved development.

Sale with exclusion(s) of legal warranty - See listing broker(s).
Information request

Financial details

Annual
Monthly

Calculators

  • Monthly payment
  • Transfer tax
  • Purchasing power

Monthly instalments

 

**Price does not include CMHC insurance premium.

Transfer tax

 

** For reference only, for the exact amount, please confirm with the city or municipality.

Purchasing power

 

**Price does not include CMHC insurance premium.

You like this property?Share it!

New properties on the market that might interest you

Looking for the property of your dreams? It's right here, and call us to find out more or schedule a visit!

WhatsApp
+

Your cookie preferences

We use cookies to optimize our website and collect usage statistics.

Cookie policy