Maison à étages à vendre, Châteauguay

174, Rue Jules-Dumouchel

749 000 $

174, Rue Jules-Dumouchel

Châteauguay

chambre(s) 4 salle(s) de bain 2 salle(s) de bain 12
Photo Joanne Simonetti

Joanne Simonetti

Courtier immobilier résidentiel

514-568-0205

No Centris
#11627496
Type de propriété
Maison à étages
Style de bâtiment
Détaché (Isolé)
Année de construction
2011
Superficie du terrain
547.40 m²
Date d’emménagement
30 jours

Caractéristiques

Allée
Asphalte
Aménagement du terrain
Terrain/cour bordé de haies , Patio, Paysager
Mode de chauffage
Plinthes électriques
Approvisionnement en eau
Municipalité
Énergie pour le chauffage
Électricité
Équipement disponible
Balcon privé , Cour privée, Échangeur d'air, Semi-meublé, Thermopompe murale
Fondation
Béton coulé
Garage
Attaché , Chauffé, Intégré, Simple largeur
Appareils en location
Chauffe-eau (1)
Particularités
Coin de rue
Salle de bains/salle d'eau
Douche indépendante
Sous-sol
6 pieds et plus , Totalement aménagé
Stationnement
Extérieur (2) , Au garage (1)
Système d'égouts
Municipal
Topographie
Plat
Zonage
Résidentiel

Dimensions

Façade du bâtiment
30.60 pi.
Profondeur du bâtiment
32.00 pi.
Superficie habitable
Façade du terrain
Profondeur du terrain
Superficie du terrain
547.40 m²

Particularités des pièces

Pièces
12 pièces    |    4 chambre(s)    |    2 salle(s) de bain    |    1 salle(s) d'eau
Cuisine
Rez-de-chaussée
9.7 x 12 pi.
Revêtement : Céramique
Salle à manger
Rez-de-chaussée
13.2 x 13.8 pi.
Revêtement : Bois
Salon
Rez-de-chaussée
17.4 x 15.9 pi.
Revêtement : Bois
Salle d'eau
Rez-de-chaussée
5.8 x 4.9 pi.
Revêtement : Céramique
Salle de lavage
Rez-de-chaussée
5.8 x 5.2 pi.
Revêtement : Céramique
Chambre à coucher principale
2ième étage
10.11 x 14.4 pi.
Revêtement : Bois
Chambre à coucher
2ième étage
12 x 9.6 pi.
Revêtement : Bois
Chambre à coucher
2ième étage
11.7 x 9.5 pi.
Revêtement : Bois
Salle de bains
2ième étage
13.4 x 8.3 pi.
Revêtement : Céramique

Plancher chauffant
Salle familiale
Sous-sol
9.4 x 18.9 pi.
Revêtement : Couvre-sol souple
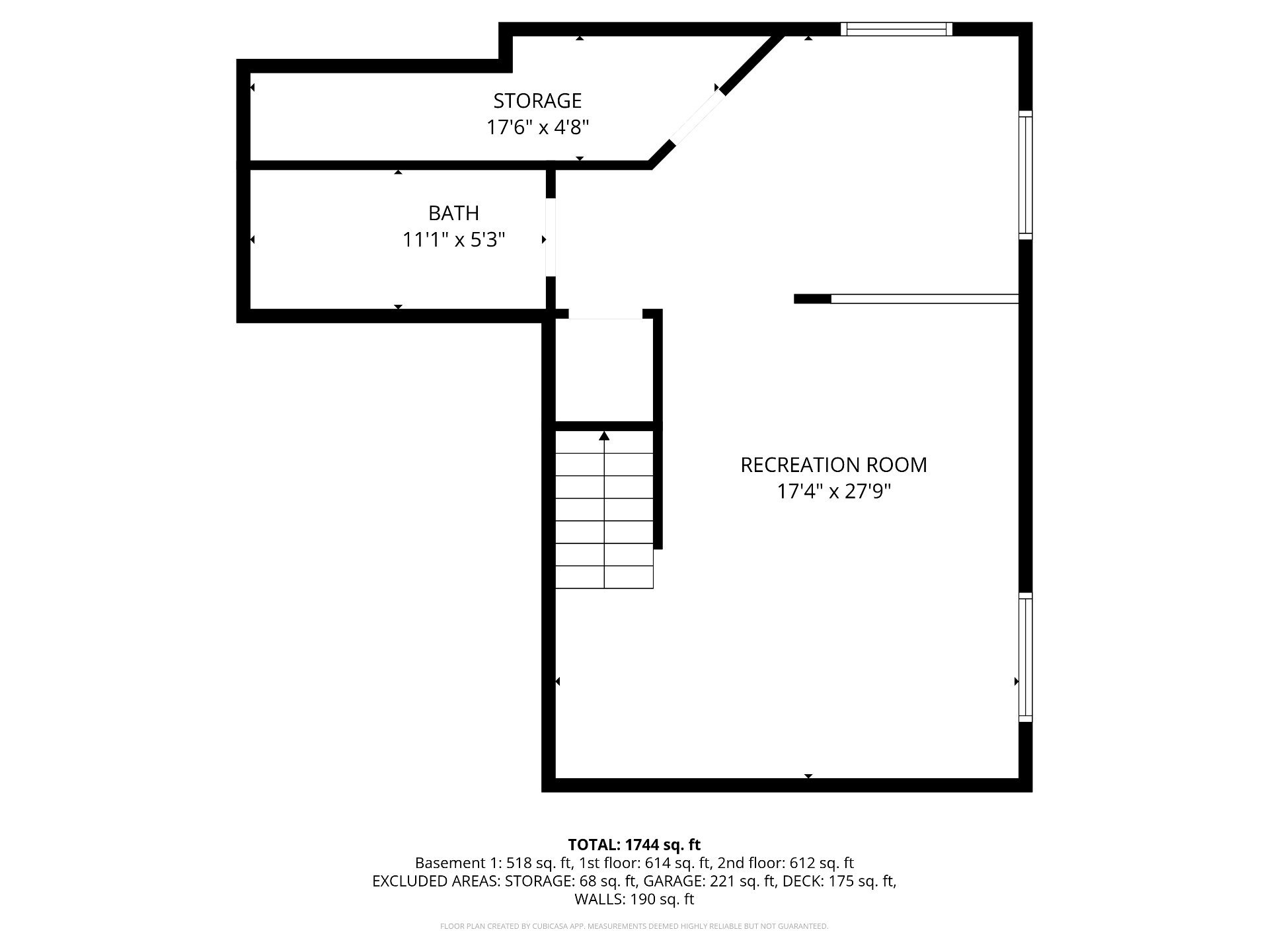
Autre
Sous-sol
8 x 9 pi.
Revêtement : Couvre-sol souple

Semi-ouvert, eput-être renferm
Salle de bains
Sous-sol
11.1 x 5.3 pi.
Revêtement : Céramique
Rangement
Sous-sol
17.6 x 4.8 pi.

Inclusions

hHabillages de fenêtres; luminaires inclus; laveuse, sécheuse.

Exclusions

Électro-ménagers dans la cuisine: réfrigérateur, lave-vaisselle, cuisinière.

Addenda

174 Jules-Dumouchel offre un espace, une configuration et des caractéristiques de plus en plus rares dans le secteur. Située sur un terrain de coin baigné de soleil face au parc Jean-Boyer, cette propriété soigneusement entretenue répond à tous les critères essentiels : 3+1 chambres, 2+1 salles de bains, un garage et une grande cour privée.

Le rez-de-chaussée est lumineux et fonctionnel, avec des aires de vie et de salle à manger ouvertes, conçues pour le quotidien. La cuisine a été entièrement rénovée avec des matériaux de qualité, incluant comptoirs et dosseret en pierre, un grand îlot, ainsi que des armoires sur mesure offrant un rangement abondant et des tiroirs coulissants pratiques.

À l'étage, trois chambres de bonnes dimensions offrent un espace de vie confortable pour une famille, accompagnées d'une salle de bains spacieuse avec bain et douche séparés.

Le sous-sol aménagé ajoute un espace de vie considérable, avec une grande salle familiale, un espace polyvalent idéal pour un bureau à domicile, une salle d'entraînement ou une chambre supplémentaire, une salle de bains complète avec planchers chauffants, de nombreux espaces de rangement, ainsi qu'un cellier sur mesure apportant une touche de luxe inattendue. Que ce soit pour une famille élargie, le télétravail ou simplement pour plus d'espace, le sous-sol représente un atout majeur.

À l'extérieur, la propriété continue de se démarquer. La cour arrière est intime et sécuritaire, bordée de haies matures et aménagée avec une terrasse agrandie, une pergola métallique à lames orientables et une remise. Le terrain de coin et l'orientation assurent une luminosité naturelle tout au long de la journée.

Un garage chauffé avec plancher en époxy ajoute confort et durabilité au quotidien.

Située directement en face du parc et à proximité des pistes riveraines, des écoles, des commerces et des services, cette propriété offre un équilibre solide entre espace, fonctionnalité et valeur à long terme dans un environnement familial recherché.

À propos de cette propriété

Propriété de coin ensoleillée, face au parc Jean-Boyer, impeccablement rénovée et entretenue. 3+1 chambres, 2+1 salles de bains. Superbe cuisine de chef sur mesure avec dosseret et comptoirs en pierre, grand îlot et ample rangements. Sous-sol aménagé avec cellier sur mesure, salle familiale, espace polyvalent pour chambre ou bureau, et SDB avec planchers chauffants. Cour arrière intime avec terrasse agrandie et pergola louvrée. Garage chauffé avec plancher en époxy. À proximité des écoles, commerces et accès facile à la ville. *Veuillez noter que certaines photos ont été mises en scène virtuellement afin d'illustrer des options d'aménagement.

Demande d'information

Détails financiers

Annuel
Mensuel
Évaluation municipale (2026)
Bâtiment
521 800 $
Terrain
191 600 $
Taxes
Taxes municipales (2026)
5 478 $ 457 $
Taxes scolaires (2026)
600 $ 50 $

Calculateurs

  • Paiement mensuel
  • Taxe de mutation
  • Pouvoir d'achat

Montant des versements mensuels

 

**Le prix affiché n’inclut pas la prime d’assurance SCHL.

Taxe de mutation

 

** Uniquement à titre de référence, pour le montant exact, s'il vous plaît confirmer auprès de la ville ou la municipalité.

Pouvoir d'achat

 

**Le prix affiché n’inclut pas la prime d’assurance SCHL.

Vous aimez cette propriété?Partagez-la!

Nouvelles propriétés sur le marché qui pourraient vous intéresser

Vous cherchez la propriété de vos rêves? C’est par ici, et appelez-nous pour en savoir davantage ou planifier une visite !

WhatsApp
+

Vos préférences en matière de cookies

Nous utilisons des cookies pour optimiser notre site web et collecter des statistiques d'utilisation.

Politique en matière de cookies