899 000 $
950, Boul. Jolicoeur
Laval (Saint-Vincent-de-Paul)

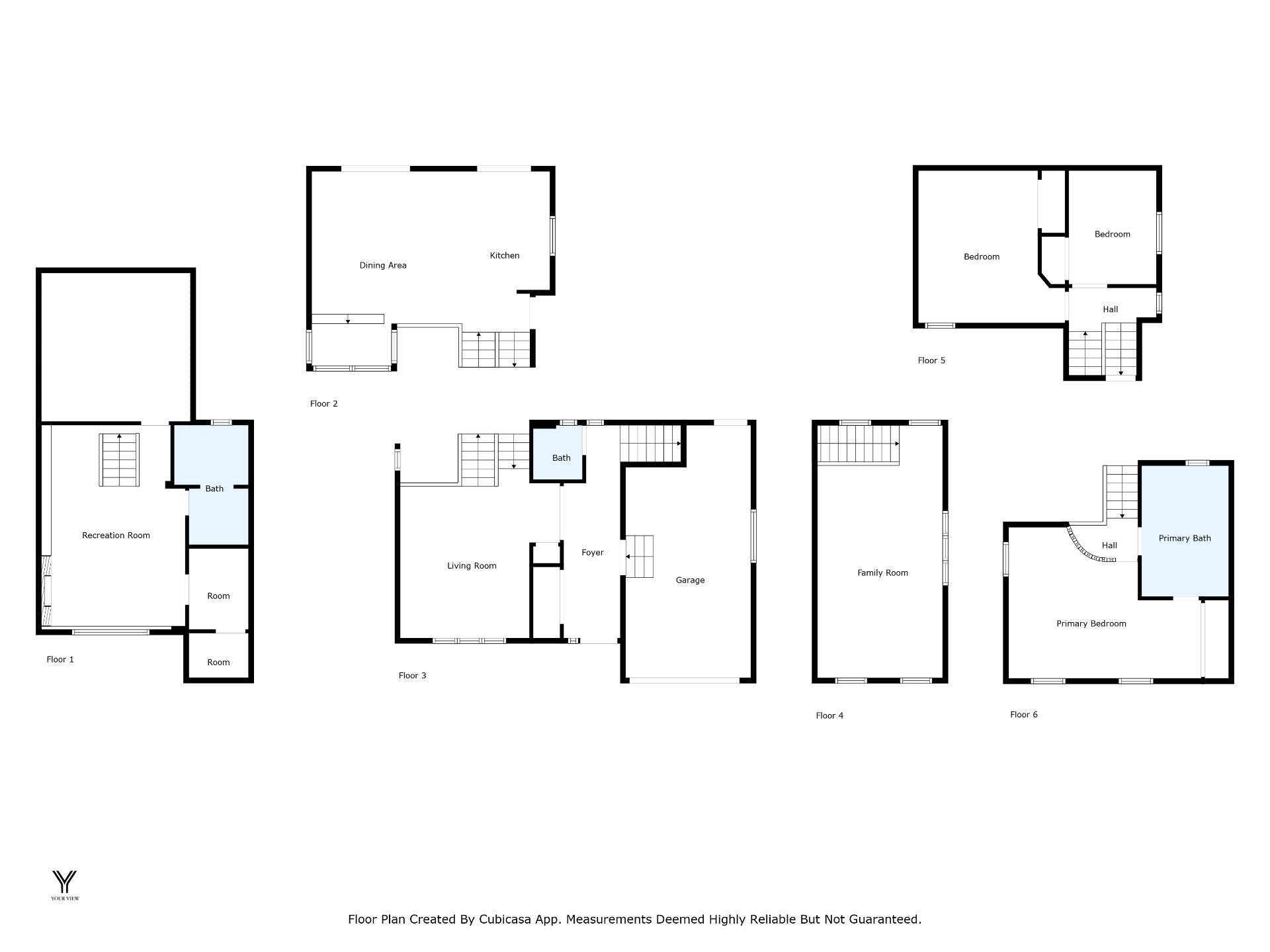
Magnifique et unique maison à paliers multiples située directement en face d'un parc et d'une école. Construite en 1984 et entretenue avec soin, cette propriété clé en main est baignée de lumière grâce à sa fenestration abondante. Pièces spacieuses et bien divisées, grande cour ensoleillée avec piscine creusée, parfaite pour une famille ou un couple. Améliorations majeures : nouveau chauffe-piscine et pompe (2021), panneau électrique (2020), porte de garage (2022), système d'irrigation, toile de piscine (2024), filtre au sable (2025) et chlorinateur.
Demande d'informationMontant des versements mensuels
**Le prix affiché n’inclut pas la prime d’assurance SCHL.
Taxe de mutation
** Uniquement à titre de référence, pour le montant exact, s'il vous plaît confirmer auprès de la ville ou la municipalité.
Pouvoir d'achat
**Le prix affiché n’inclut pas la prime d’assurance SCHL.